Extensions

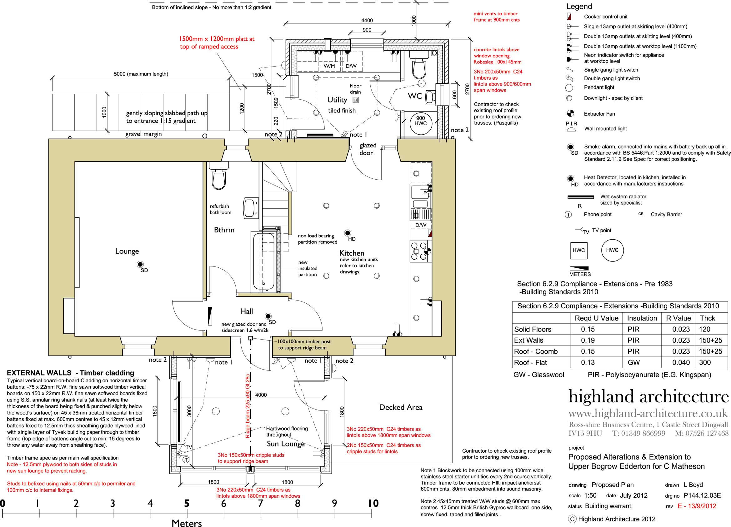
Case Study 1 – Edderton

 


 

Case Study 2 – Invergordon

A traditional 3 storey property in Invergordon was in need of  refurbishment, and therefore it was ideal time to consider an extension to give the children more room and privacy as they get older. The design of the extension was dictated by the adjoinging property which had previously been extended. External materials such as slate and render will make this extension blend into the streetscape.

 


 

Case Study 3 – Lochinver

A new extension / annexe will give this family much needed room, and along with a timber external raised balcony will allow a stunning view across to Lochinver from Baddidarroch.